Case Studies

These case studies demonstrate our persistence and specialized expertise in SB9 Lot Splits.
Through creative problem solving, we gain approvals where other engineering firms would not.

1. $650,000 Value Addition to property in Santa Barbara County

Read on to see how Riechers Engineering overcame complex hurdles with Environmental Health Dept. in Santa Barbara for a significant value add of $650,000.

Challenge: County would not allow the parcel to be divided and denied our lot split application. Environmental health disapproved of the project because it did not meet their septic standards, even though no further development was proposed.

Solution: Riechers Engineering fought the negative ruling and identified double standards in the County’s application of SB-9. Riechers pointed out specific legislature language that showed the county’s argument about septic limitations was not a valid basis for denial.

Result: Riechers Engineering’s persistence paid off. They were able to create a second valuable parcel for their client, increasing their property value by net $650,000.

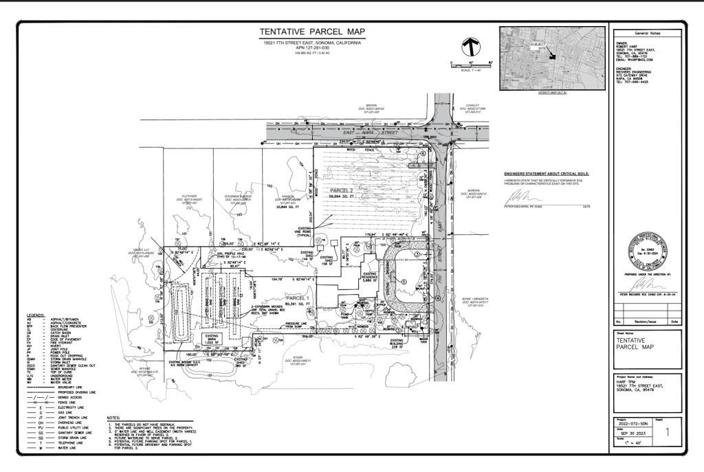
2. Adding over $1M to Client's Property Value in Sonoma, CA

Discover how Riechers Engineering transformed our client’s property in Sonoma, CA, increasing its value by a staggering $1.1 million in just 22 months.

Challenge: Our client faced zoning and minimum lot size constraints that prevented them from building another home on their parcel.

Solution: With the expertise of Riechers Engineering, we navigated the complexities of the project. Using SB-9, we sidestepped neighborhood notification hurdles and secured ministerial project approval.

Result: In under two years, our client not only gained a second valuable parcel but also unlocked the potential to build two additional full-sized homes without being hindered by subjective design standards. This transformation has increased their property value by $1,100,000 while unlocking a variety of new options for their property.

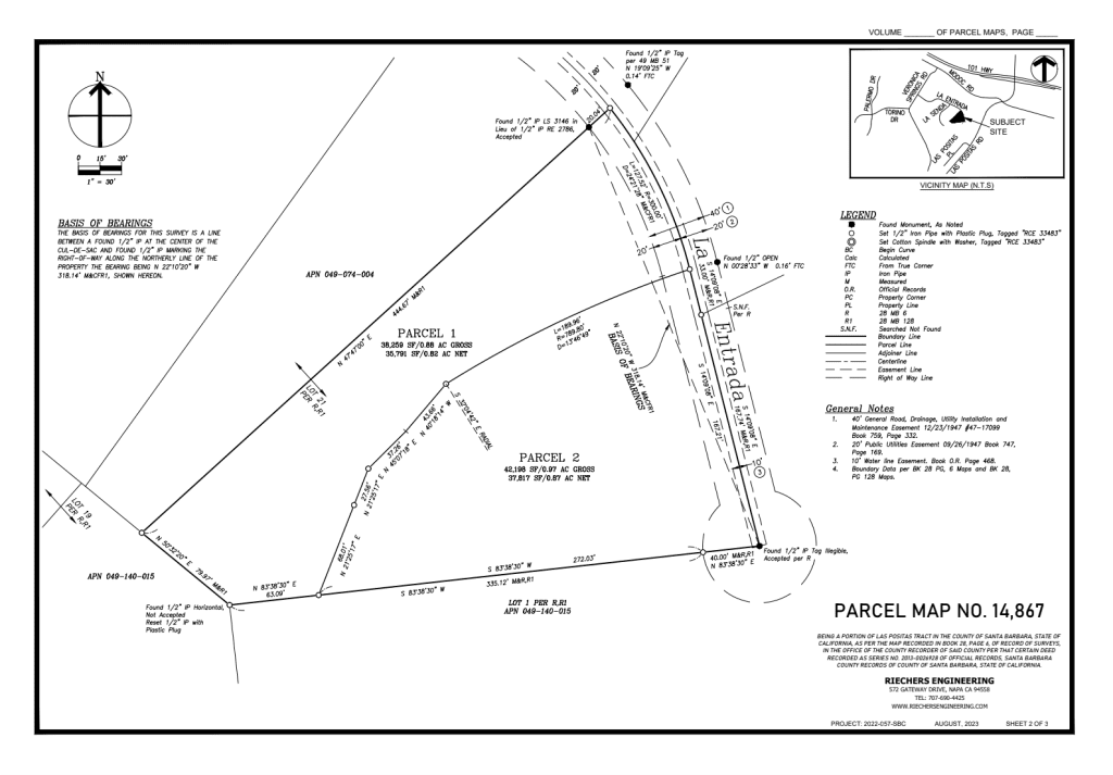
3. Overcoming Environmental Challenges in Novato, CA

Discover how we helped our client unlock the potential of their property in Novato, CA, increasing its value by an impressive $600,000 in just 15 months.

Challenge: The city initially rejected the lot split project due to environmental concerns and local regulations.

Solution: We proactively engaged our biologist to conduct a comprehensive report on the property. The findings revealed the absence of critical species’ habitat, allowing us to present a compelling case for the project’s environmental compliance.

Result: With this specialized biological report and extensive research, we successfully obtained approval for the lot split and recorded the parcel map, enabling our client to realize the property’s full potential.

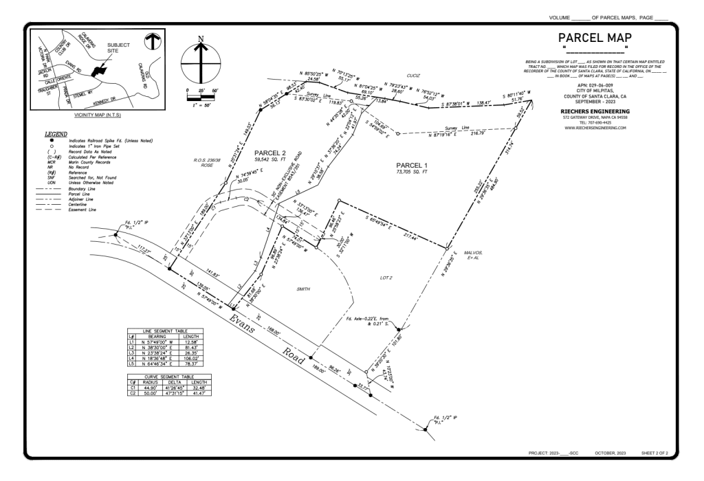
4. Unleashing Property Potential in Milpitas, CA

Discover how we maximized value on our client’s property in Milpitas, CA, increasing its value by a remarkable $650,000 in just 9 months.

Challenge: Our client initially pursued an SB-9 lot split on his own, but was told by the City that his property didn’t qualify due to a specific zoning restriction.

Solution: Our client contacted us for specialized guidance and verification of the city’s negative ruling. Through rigorous research and collaboration with local land use lawyers, we identified a grey-zone in general plan/zoning designations. With persistence and expertise, we successfully persuaded the city to modify their zoning allowances to align with state law.

Result: In just 9 months, Riechers Engineering was able to overturn regulatory hurdles, leading to significantly enhanced property value and providing our client with new opportunities.

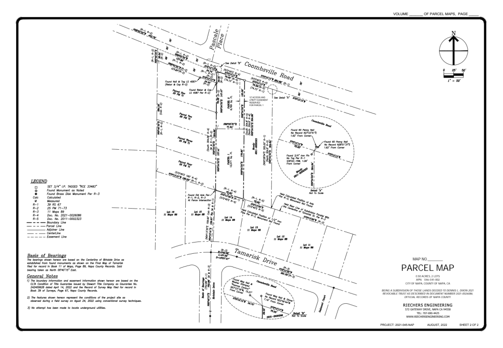
5. Maximizing Value in Napa, CA

Discover how our client in Napa, CA, increased their property value by $200,000 in just 15 months while saving another $50,000 on development costs.

Challenge: After multiple attempts at subdividing, our client faced daunting demands from the city, including costly infrastructure upgrades. Our client gave up on pursuing a lot split on their own, finally seeking expertise from Riechers Engineering.

Solution: By entrusting Riechers Engineering to lead their SB-9 project, our client avoided the expensive development that the city was originally requiring of them: installation of curb and gutter, sidewalks, street widening, undergrounding electricity, and Right-of-way dedication.

Result: In just over a year, our client became the owner of two separate, valuable parcels. Additionally, our client saw a significant increase in property value and saved $50,000 in additional expenses by hiring Riechers Engineering.

With two valuable parcels now in their name, they achieved their goal without the legwork or unnecessary costs.

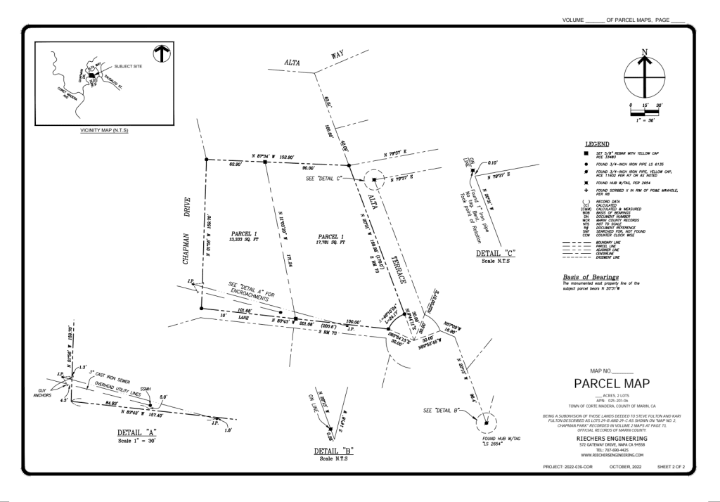
6. Unlocking Potential in Corte Madera, CA

Discover how we facilitated a complex lot split for our client in Corte Madera, CA, increasing their property value by an impressive $650,000 in just 18 months.

Challenge: Our client faced restrictions related to minimum lot size and slope, hindering their ability to build another home on their parcel.

Solution: With our expertise, we completed an SB-9 lot split, opening up previously unusable land for development. Now the 2,000 sq ft building footprint sits on a separate parcel, providing future sale opportunities. It is important to note, the SB-9 legislature prevents the city from imposing subjective standards on their future development.

Result: Our client’s property value soared, and they gained the flexibility to utilize their land effectively, all while ensuring their future development remains free from undue city constraints.

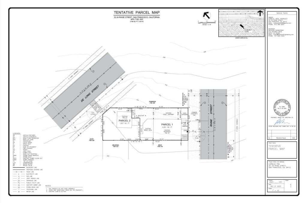
7. Unlocking Hidden Potential on a Small San Francisco Lot

See how we helped a homeowner in San Francisco turn a modest 3,716 sq. ft. property into a valuable real estate asset — adding $385,000 in property value in under 18 months.

Challenge: The property’s small size presented major hurdles. At just 3,716 square feet, it was too small to qualify for a traditional lot split under local standards. The site was already maxed out for development under standard zoning rules, leaving the owner with very few options for expansion or added value.

Solution: The client hired Riechers Engineering to creatively navigate these limitations using California’s SB9 law. We:

  • Conducted a full eligibility assessment to confirm the property qualified under SB9 guidelines, despite its small size.

  • Strategically designed a project that complied with both state and local SB9 regulations.

  • Prepared and submitted the SB9 lot split and development applications, overcoming zoning and density challenges.

  • Maximized the development potential by enabling the construction of three additional residential units across two newly created properties.

  • Provided full project management, city coordination, and expedited approvals to keep the project on track.

Result: By successfully splitting the property and unlocking the ability to add three new units:

  • The homeowner increased the overall property value by $385,000 (with the lot split alone, before any development).

  • They created a second legal parcel, opening the door to flexible options: selling one parcel, renting new units, or holding for long-term appreciation.

  • The client dramatically increased potential rental income and future resale opportunities — all from a lot many had written off as “too small to split.”

Start your lot split today

We will qualify the eligibility of your property for you, free of cost.

Scroll to Top